Building
5908 + 5909

Client______Staatliches Bauamt Nürnberg


Planning time______since 2024
Gross area______2980 m²

 

 

  • 1
  • 2
  • 3
  • 4
  • Construction Data

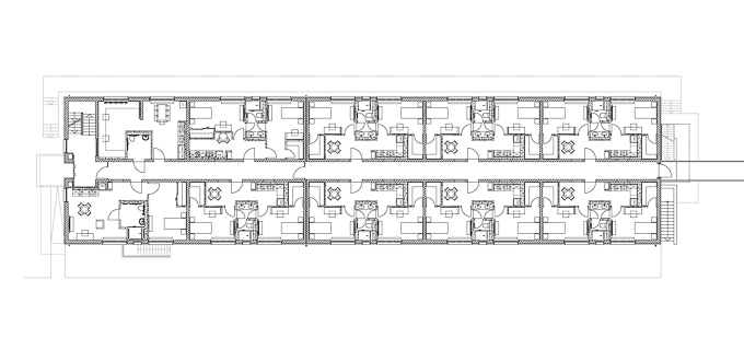
Building 5908 + 5909 · Katterbach

Renovation of accommodation buildings 5908 and 5909, including the associated outdoor facilities. The project is located within the Bismarck Barracks in Katterbach. The buildings consist of a two-story accommodation area with a full basement and an unfinished attic.

 

Go back